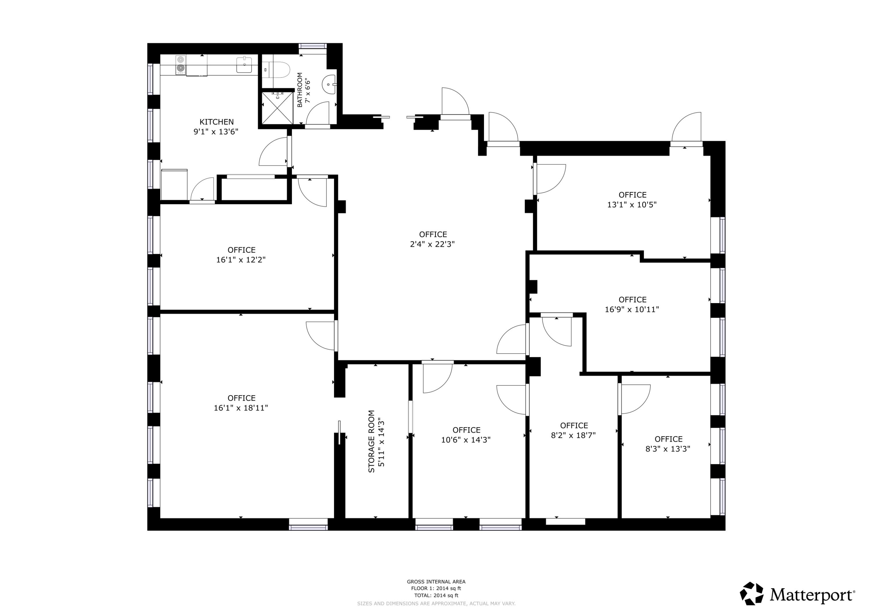
Located in the heart of downtown Bangor, this fourth-floor commercial condo offers a rare opportunity for an owner-occupied business or an investor seeking flexible office space. Everything you and your clients need outside the office is also minutes in any direction - restaurants, shops, City Hall, the post office, and the library. It all comes together to create an ideal setting for you to plant your business and grow. The 2,014± square foot unit features six dedicated private offices, a larger office that easily functions as a conference room, and two additional workstations in the reception area - maximizing both privacy and productivity. The space was freshly painted within the last year and includes a full kitchen and a private restroom with a shower, adding comfort and convenience. Currently owned and occupied by a single business, the layout also lends itself well to income generation by leasing individual offices to professionals in need of downtown workspace. Additional features include direct elevator access to the unit, approximately 150 square feet of secure basement storage, and dedicated parking behind the building. There is also plenty of free on-street parking, along with a paid public parking lot directly across the street. Overall, this well-maintained office condo offers location, flexibility, and long-term potential to work for you - or earn for you. The space is available for occupancy in June.

Listing Tools

Property Details of 115 Franklin Street, Unit Suite 4

Property Details

Utilities and Appliances

Map Location

Listing data is derived in whole or in part from the Maine IDX & is for consumers' personal, non commercial use only. Dimensions are approximate and not guaranteed. All data should be independently verified. ©2026 Maine Real Estate Information System, Inc. All Rights Reserved. equal opportunity housing logo   Privacy Policy

The Allen Group participates in ©2026 Maine Listings Internet Data Exchange program, allowing us to display other Maine IDX Participants' listings. This website does not display complete listings. Certain listings of other real estate brokerage firms have been excluded. Mortgage figures are estimates. Check with your bank or proposed mortgage company for actual interest rates. This product uses the FRED® API but is not endorsed or certified by the Federal Reserve Bank of St. Louis.

Hi there! How can we help you?

Contact us using the form below or give us a call.

Send Us A Message:

I agree to receive marketing and customer service calls and text messages from The Allen Group. To opt out, you can reply 'stop' at any time or click the unsubscribe link in the emails. Consent is not a condition of purchase. Msg/data rates may apply. Msg frequency varies. Privacy Policy.

Do not fill in this field:

This site is protected by reCAPTCHA and the Google Privacy Policy and Terms of Service apply.

Hi there! How can we help you?

Contact us using the form below or give us a call.

Send Us A Message:

Do not fill in this field:

This site is protected by reCAPTCHA and the Google Privacy Policy and Terms of Service apply.

Hi there! How can we help you?

Contact us using the form below or give us a call.

Send Us A Message:

Do not fill in this field:

This site is protected by reCAPTCHA and the Google Privacy Policy and Terms of Service apply.

Do not fill in this field:

This site is protected by reCAPTCHA and the Google Privacy Policy and Terms of Service apply.

Do not fill in this field:

This site is protected by reCAPTCHA and the Google Privacy Policy and Terms of Service apply.

Do not fill in this field:

This site is protected by reCAPTCHA and the Google Privacy Policy and Terms of Service apply.

$

Do not fill in this field:

This site is protected by reCAPTCHA and the Google Privacy Policy and Terms of Service apply.