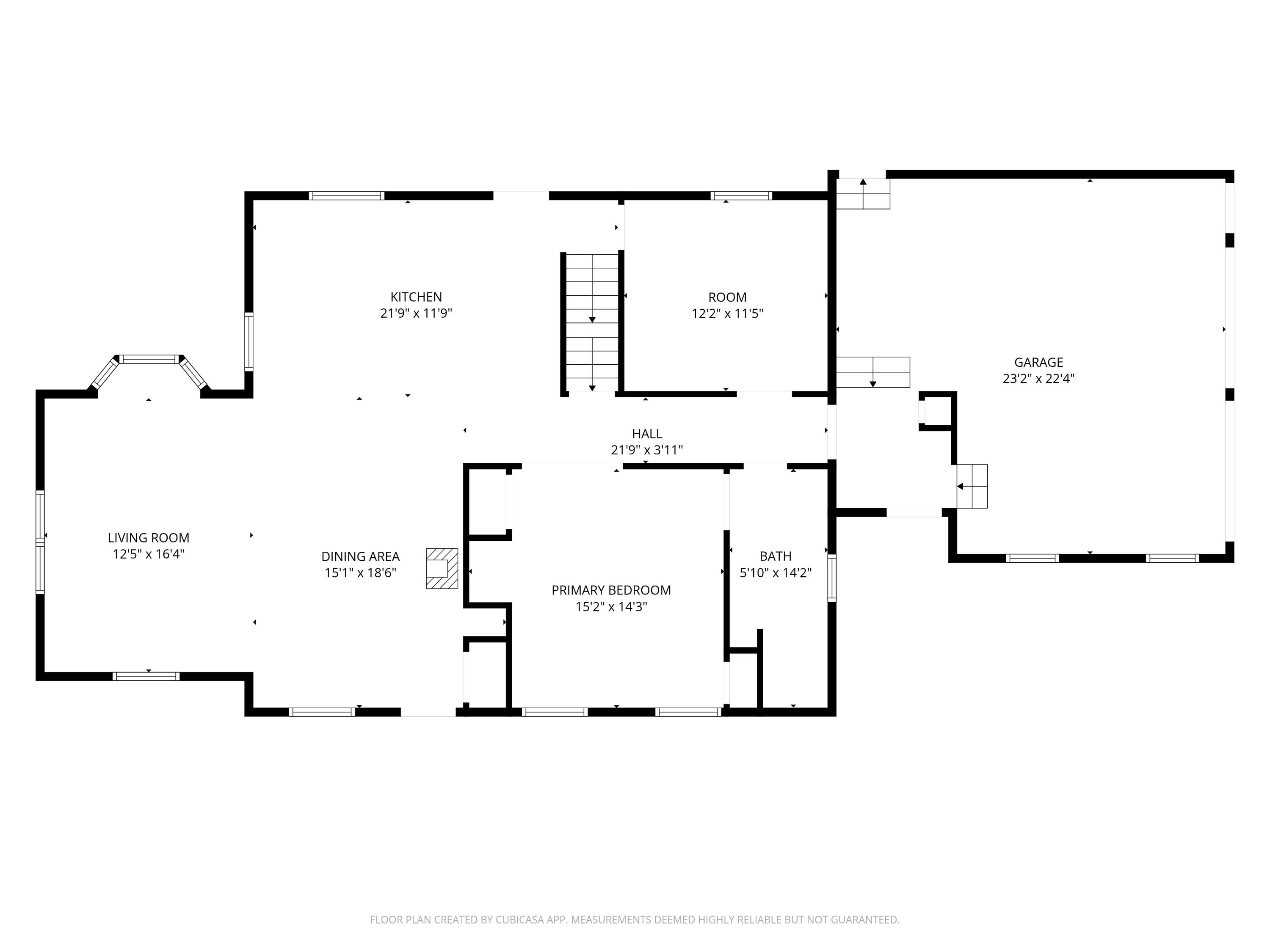
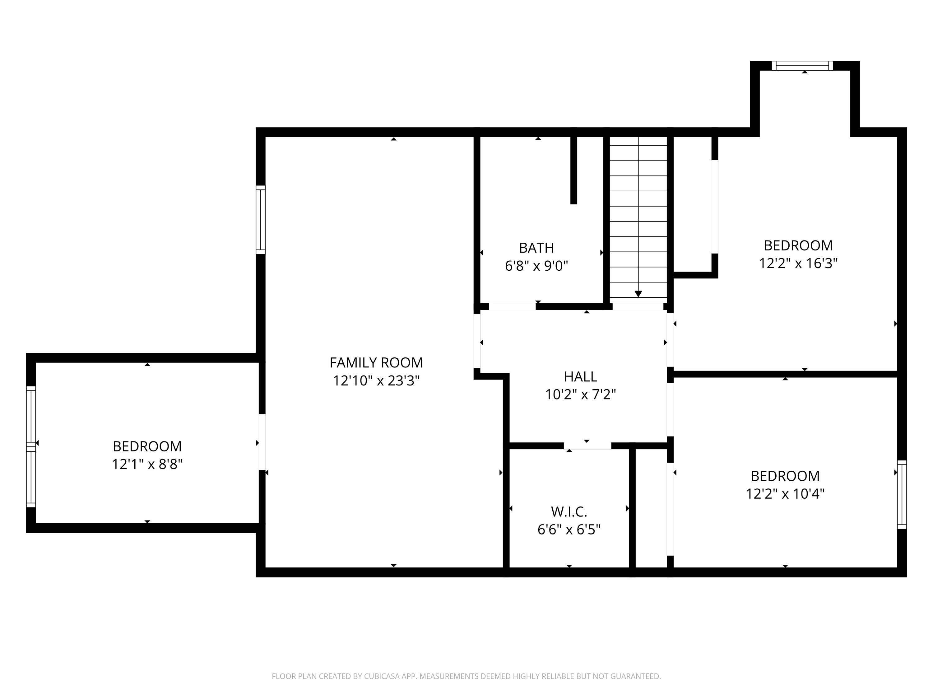
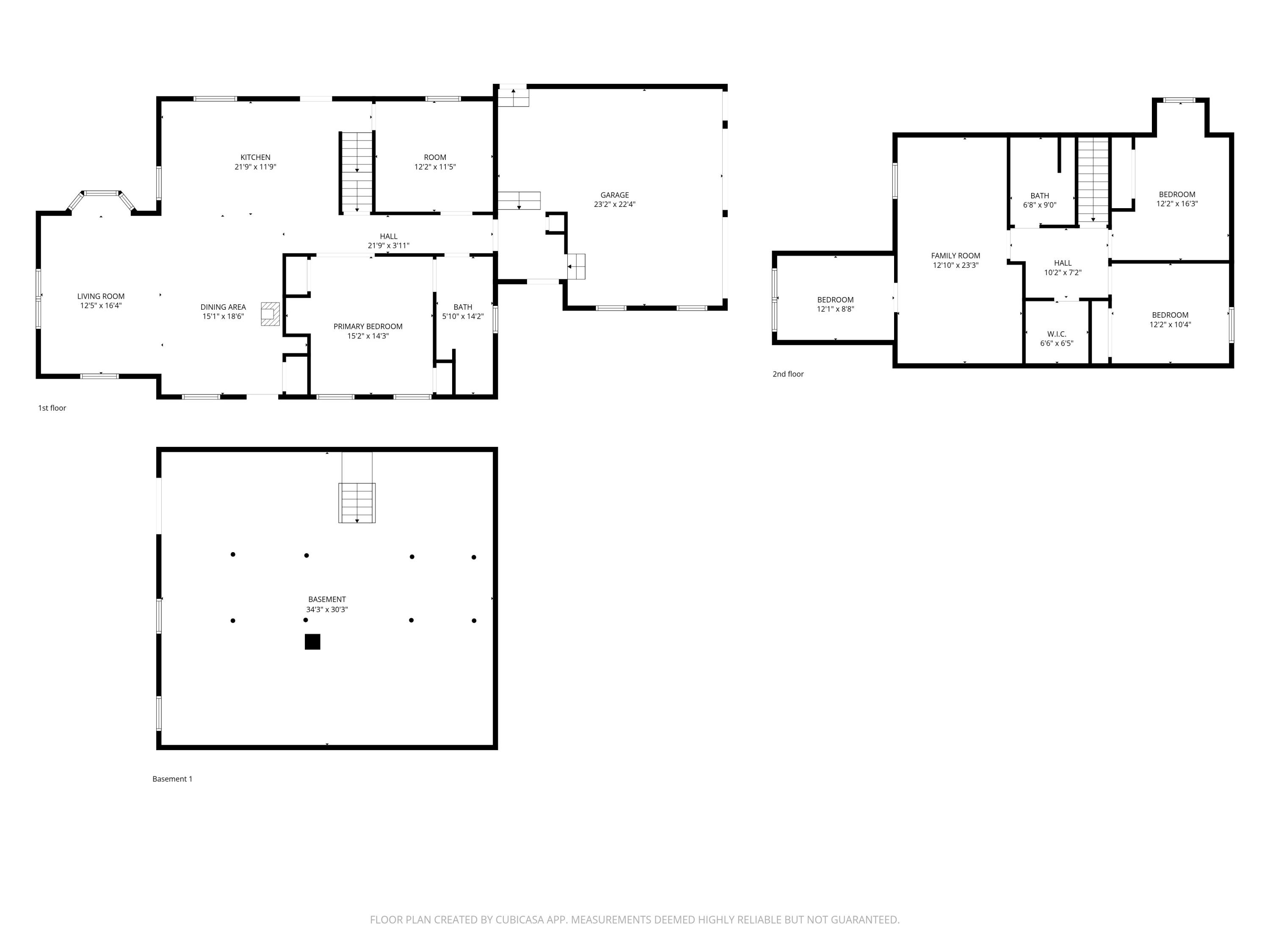
62 Loon Lake Road - Welcome to this beautifully maintained contemporary home set on 3.78 private acres with DIRECT SNOWMOBILE TRAIL access right from your backyard! Access connects into the Moose Alley Trail. Designed for year-round living, this property offers an open and inviting layout filled with natural light, featuring a like-new custom kitchen, wood floors, and a cozy Harman pellet stove. Enjoy granite counters, large island and stay cool with heat pumps on both levels and in all bedrooms! With 3-4 bedrooms, 2 full baths, and an attached 2-car garage, there's plenty of space for family and guests. Enjoy the seasonal filtered views of Rangeley Lake, abundant sunshine throughout the home, and a spacious yard perfect for recreation. Whether you're looking for a comfortable primary residence or a second home to enjoy all four seasons, this property checks all the boxes. Conveniently located close to Rangeley Village for shopping, dining, and activities, while still providing a private setting. Don't miss this opportunity-call today!

Listing Tools

Property Details of 62 Loon Lake Road

Property Details

Interior Features

Utilities and Appliances

Map Location

Listing data is derived in whole or in part from the Maine IDX & is for consumers' personal, non commercial use only. Dimensions are approximate and not guaranteed. All data should be independently verified. ©2026 Maine Real Estate Information System, Inc. All Rights Reserved. equal opportunity housing logo   Privacy Policy

The Allen Group participates in ©2026 Maine Listings Internet Data Exchange program, allowing us to display other Maine IDX Participants' listings. This website does not display complete listings. Certain listings of other real estate brokerage firms have been excluded. Mortgage figures are estimates. Check with your bank or proposed mortgage company for actual interest rates. This product uses the FRED® API but is not endorsed or certified by the Federal Reserve Bank of St. Louis.

Hi there! How can we help you?

Contact us using the form below or give us a call.

Send Us A Message:

I agree to receive marketing and customer service calls and text messages from The Allen Group. To opt out, you can reply 'stop' at any time or click the unsubscribe link in the emails. Consent is not a condition of purchase. Msg/data rates may apply. Msg frequency varies. Privacy Policy.

Do not fill in this field:

This site is protected by reCAPTCHA and the Google Privacy Policy and Terms of Service apply.

Hi there! How can we help you?

Contact us using the form below or give us a call.

Send Us A Message:

Do not fill in this field:

This site is protected by reCAPTCHA and the Google Privacy Policy and Terms of Service apply.

Hi there! How can we help you?

Contact us using the form below or give us a call.

Send Us A Message:

Do not fill in this field:

This site is protected by reCAPTCHA and the Google Privacy Policy and Terms of Service apply.

Do not fill in this field:

This site is protected by reCAPTCHA and the Google Privacy Policy and Terms of Service apply.

Do not fill in this field:

This site is protected by reCAPTCHA and the Google Privacy Policy and Terms of Service apply.

Do not fill in this field:

This site is protected by reCAPTCHA and the Google Privacy Policy and Terms of Service apply.

$

Do not fill in this field:

This site is protected by reCAPTCHA and the Google Privacy Policy and Terms of Service apply.