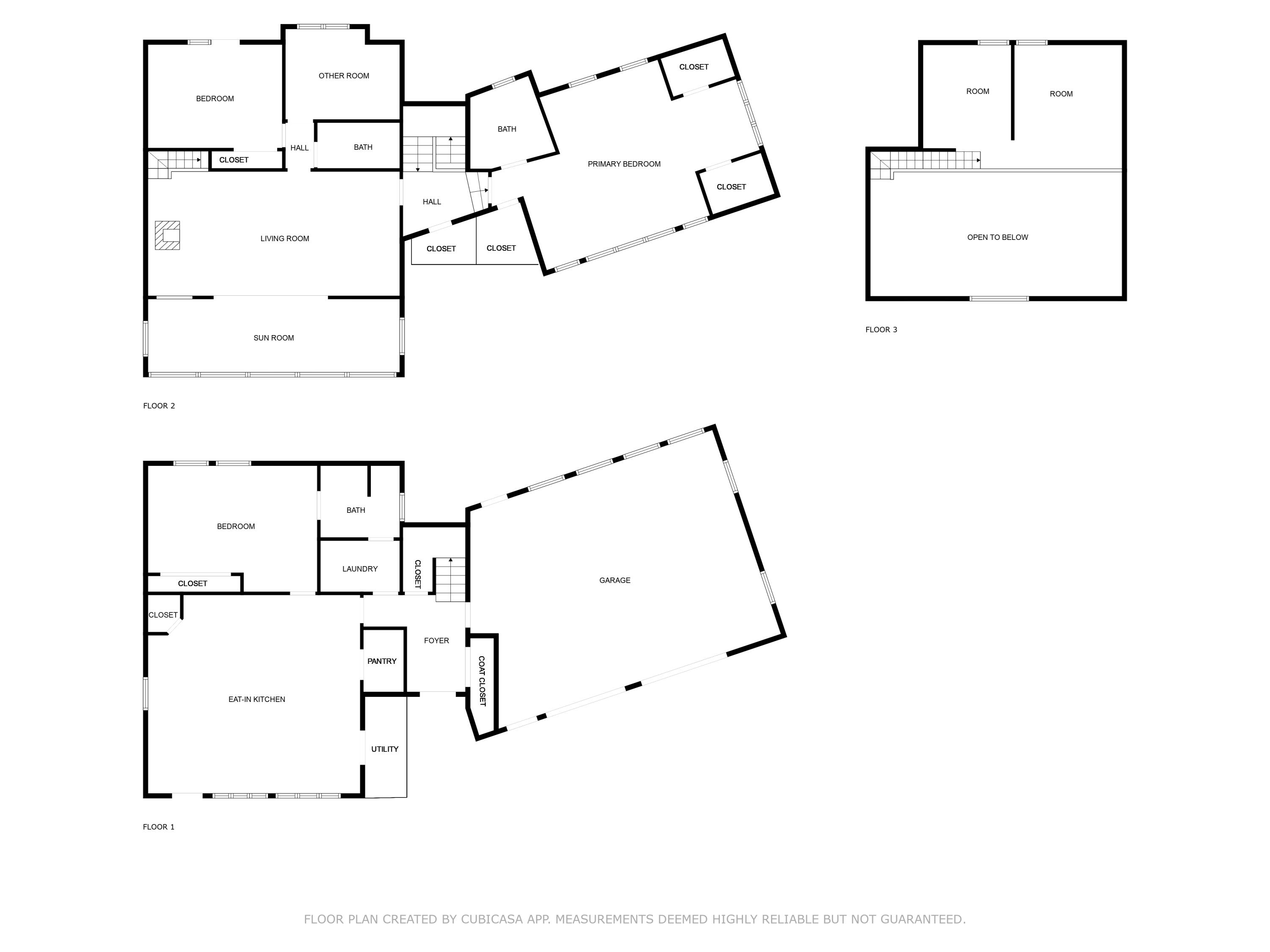
Tucked away on 25 acres just two miles from Carrying Place Beach/Newbury Neck Beach, this spacious and well-maintained home offers over 3,200 square feet of versatile living space in a peaceful Surry location. Built in 1995, the home includes three bedrooms and three full bathrooms, with a thoughtful layout that allows for privacy and flexibility. The kitchen serves as the heart of the home and features granite countertops, a large center island with power and a vegetable sink, full wraparound cabinetry, and abundant storage including a walk-in pantry, utility closet, and broom closet. Two of the three bedrooms offer direct access to a full bath, ideal for shared or multigenerational living. The attached two-car garage is heated and finished, complete with an air filtration system, making it ideal for year-round use as a workshop, hobby space, or additional storage. A paved driveway leads to the home, and the land includes an open field with mature apple trees and high-bush blueberries, offering seasonal enjoyment and plenty of space for outdoor living or gardening. A home warranty will be provided at closing for added peace of mind. This property is a unique opportunity to enjoy privacy, acreage, and close proximity to the coast while remaining just minutes from the amenities of Surry and nearby towns.

Listing Tools

Property Details of 563 Newbury Neck Road

Property Details

Interior Features

Utilities and Appliances

Map Location

Listing data is derived in whole or in part from the Maine IDX & is for consumers' personal, non commercial use only. Dimensions are approximate and not guaranteed. All data should be independently verified. ©2026 Maine Real Estate Information System, Inc. All Rights Reserved. equal opportunity housing logo   Privacy Policy

The Allen Group participates in ©2026 Maine Listings Internet Data Exchange program, allowing us to display other Maine IDX Participants' listings. This website does not display complete listings. Certain listings of other real estate brokerage firms have been excluded. Mortgage figures are estimates. Check with your bank or proposed mortgage company for actual interest rates. This product uses the FRED® API but is not endorsed or certified by the Federal Reserve Bank of St. Louis.

Hi there! How can we help you?

Contact us using the form below or give us a call.

Send Us A Message:

I agree to receive marketing and customer service calls and text messages from The Allen Group. To opt out, you can reply 'stop' at any time or click the unsubscribe link in the emails. Consent is not a condition of purchase. Msg/data rates may apply. Msg frequency varies. Privacy Policy.

Do not fill in this field:

This site is protected by reCAPTCHA and the Google Privacy Policy and Terms of Service apply.

Hi there! How can we help you?

Contact us using the form below or give us a call.

Send Us A Message:

Do not fill in this field:

This site is protected by reCAPTCHA and the Google Privacy Policy and Terms of Service apply.

Hi there! How can we help you?

Contact us using the form below or give us a call.

Send Us A Message:

Do not fill in this field:

This site is protected by reCAPTCHA and the Google Privacy Policy and Terms of Service apply.

Do not fill in this field:

This site is protected by reCAPTCHA and the Google Privacy Policy and Terms of Service apply.

Do not fill in this field:

This site is protected by reCAPTCHA and the Google Privacy Policy and Terms of Service apply.

Do not fill in this field:

This site is protected by reCAPTCHA and the Google Privacy Policy and Terms of Service apply.

$

Do not fill in this field:

This site is protected by reCAPTCHA and the Google Privacy Policy and Terms of Service apply.