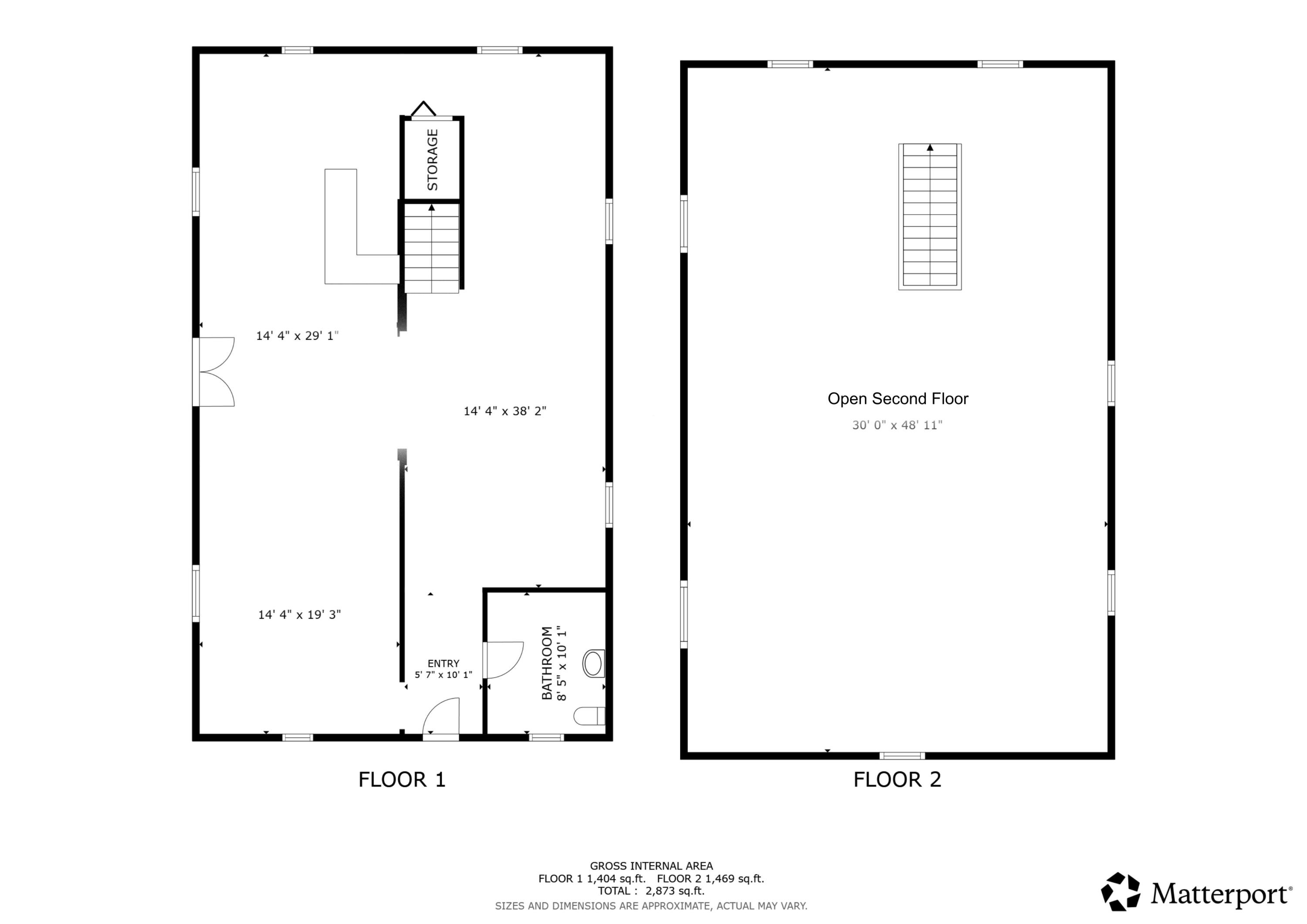
This 3,000 sq. ft. Commercial Building, available for owner immediate occupancy or your business dreams! This building offers prime visibility and access with frontage on both Route 1 and Old Searsport Ave, ideal for attracting travelers from Belfast and visitors along Route 1. The building features two stories of open-concept floor plans, providing endless possibilities for your business vision or renovation. The Searsport Ave Commercial Zoning supports a wide range of uses that includes mixed use or residential uses as well - allowing your vision to take it's next step in this location or expand on the undeveloped portion of the lot. The building is accessible via a ADA ramped front porch, the property also boasts views of Penobscot Bay and Goose River. Key amenities of this building include a large first-floor ADA Accessible bathroom, built-in reception desk, beautiful arched passages between the rooms, wall mounted AC Units, direct vent monitor heater, and central air upstairs, all complemented by a low-maintenance design with a metal roof and vinyl siding. This is an excellent opportunity to create a space that fits your needs in a highly accessible, visible, and desirable location!

Listing Tools

Property Details of 7 Old Searsport Avenue

Property Details

Utilities and Appliances

Map Location

Listing data is derived in whole or in part from the Maine IDX & is for consumers' personal, non commercial use only. Dimensions are approximate and not guaranteed. All data should be independently verified. ©2026 Maine Real Estate Information System, Inc. All Rights Reserved. equal opportunity housing logo   Privacy Policy

The Allen Group participates in ©2026 Maine Listings Internet Data Exchange program, allowing us to display other Maine IDX Participants' listings. This website does not display complete listings. Certain listings of other real estate brokerage firms have been excluded. Mortgage figures are estimates. Check with your bank or proposed mortgage company for actual interest rates. This product uses the FRED® API but is not endorsed or certified by the Federal Reserve Bank of St. Louis.

Hi there! How can we help you?

Contact us using the form below or give us a call.

Send Us A Message:

I agree to receive marketing and customer service calls and text messages from The Allen Group. To opt out, you can reply 'stop' at any time or click the unsubscribe link in the emails. Consent is not a condition of purchase. Msg/data rates may apply. Msg frequency varies. Privacy Policy.

Do not fill in this field:

This site is protected by reCAPTCHA and the Google Privacy Policy and Terms of Service apply.

Hi there! How can we help you?

Contact us using the form below or give us a call.

Send Us A Message:

Do not fill in this field:

This site is protected by reCAPTCHA and the Google Privacy Policy and Terms of Service apply.

Hi there! How can we help you?

Contact us using the form below or give us a call.

Send Us A Message:

Do not fill in this field:

This site is protected by reCAPTCHA and the Google Privacy Policy and Terms of Service apply.

Do not fill in this field:

This site is protected by reCAPTCHA and the Google Privacy Policy and Terms of Service apply.

Do not fill in this field:

This site is protected by reCAPTCHA and the Google Privacy Policy and Terms of Service apply.

Do not fill in this field:

This site is protected by reCAPTCHA and the Google Privacy Policy and Terms of Service apply.

$

Do not fill in this field:

This site is protected by reCAPTCHA and the Google Privacy Policy and Terms of Service apply.